• Özel açık mutfak alanına ve yemek alanı için bol miktarda alana sahip geniş bir oturma odası.
• İç alanı genişleten ve istediğiniz zaman açık havada dinlenmenize olanak tanıyan rahat bir teras.
• Maksimum konforunuzu sağlayan özel bir banyo alanı.
• Binanın uzun ömürlü olmasını sağlayan sağlam ve güvenilir dil ve oluk yapısı.
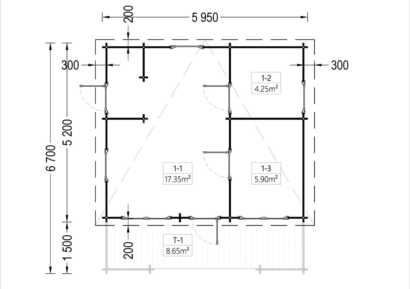
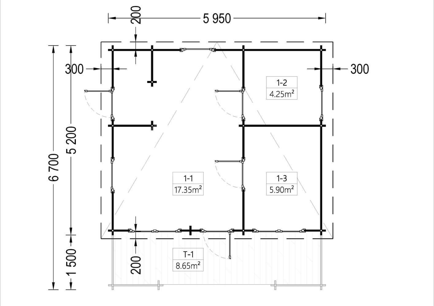
Kendinizi harika küçük ölçekli yaşam deneyimine bırakın! Güzel ahşap evimiz ALTURA, dinlenmek ve daha doğal, çevre dostu bir yaşam tarzının tadını çıkarmak için konforlu bir alan sağlar. Keyifli bir terasla genişletilen kullanışlı iç mekan düzeni, içeride veya dışarıda uzanmak için çeşitli alanların yanı sıra, dinlendirici, kesintisiz bir uyku için özel bir yatak odasına sahip olmanızı sağlar.
Isı Yalıtımı / BRF (Yapı Yönetmeliğine Uygun)
Bu prefabrik ahşap ev, konut düzeyinde ısı yalıtımına sahiptir. Çatı yalıtımında kullanılan 175 mm kalınlığındaki poliüretan levhalar, yalıtımlı zemin (200 mm) ve duvarlar (120 mm) sayesinde üst düzeyde konut konforu sağlanmaktadır. Bu BRF evinde ayrıca fiyata dahil olan beyaz PVC pencereler ve kapılar bulunmaktadır. İster kısa bir konaklama için geliyor olun ister evinizi ana ikametgah olarak kullanıyor olun, tüm yıl boyunca kendinizi sıcak ve rahat hissedeceksiniz.
| Ahşap İşleme | İsteğe bağlı |
|---|---|
| Çatı | 20 mm Dil ve Oluk çatı levhaları + 9 mm çatı konstrüksiyonu + 175 mm izolasyon |
| Çatı Alanı | 36 m² |
| Çatı Çıkıntısı (Ön, Yan, Arka) | 30 cm |
| Çatı Eğim Oranı | 6,2° |
| Çatı Kaplama Malzemesi | İsteğe bağlı |
| Çürümeye Karşı Garanti | 10 yıl |
| Dış boyutlar (GxD), Metrik | 595x520 cm +150 cm |
| Duvar | 44 mm + 120 mm poliüretan izolasyon + 44 mm |
| Kapılar | 4*85 cm x 192 cm |
| Malzeme | Yavaş büyüyen ladin |
| pencereler | 2*138 cm x 105 cm; 3*90 cm x 39 cm |
| Saçak yüksekliği | 216 cm |
| Sırt Yüksekliği | 270cm |
| Toplam Oda Sayısı | 3 |
| Yaşam alanı | 27,5 m² |
| Zemin | 20 mm Dil ve Oluk döşeme tahtaları + 9 mm döşeme yapısı + 200 mm izolasyon |
| Zemin alanı | 31 m² |
-
Bu ürün için daha önce yorum yapılmadı.
-
Henüz soru yok
Satın almış olduğunuz ürünü, biz yerinde kurulum ve montaj yapıyoruz. Sizin yapmanız gereken, plan dahilinde zemini ( subasman) hazırlamak. zemini ; beton, bims, bordür, metal olarak yapabilirsiniz.
Örneğin: 50m2 olan bir evi 1 haftada kurulumunu yapıyor teslim ediyoruz. Evin kurulumu + tüm kapı pencereler + taban tahtaları + tavan tahtaları bize aittir. Ahşap kurulumu yapılmış şekilde anahtarınızı teslim ediyoruz.
İşimiz sadece ahşap olduğu için, iç dekorasyon uygulaması yapmıyoruz. Elektrik + su + banyo + mutfak, çatı izolasyon size ait.
( eğer toplu sipariş olursa, çözüm odaklı partner firmalar sayesinde anahtar telimi fiyat da verebiliriz)
Merkezimiz Antalya dır. 1adetli siparişlerde nakliye müşteriye aittir. en az 4 adet ve katları siparişlerde, nakliye firmamıza aittir.
Görüşmeye mi ihtiyacınız var?
Menajerimiz tüm sorularınızı cevaplayacak- Ürün Kodu: AV1364




