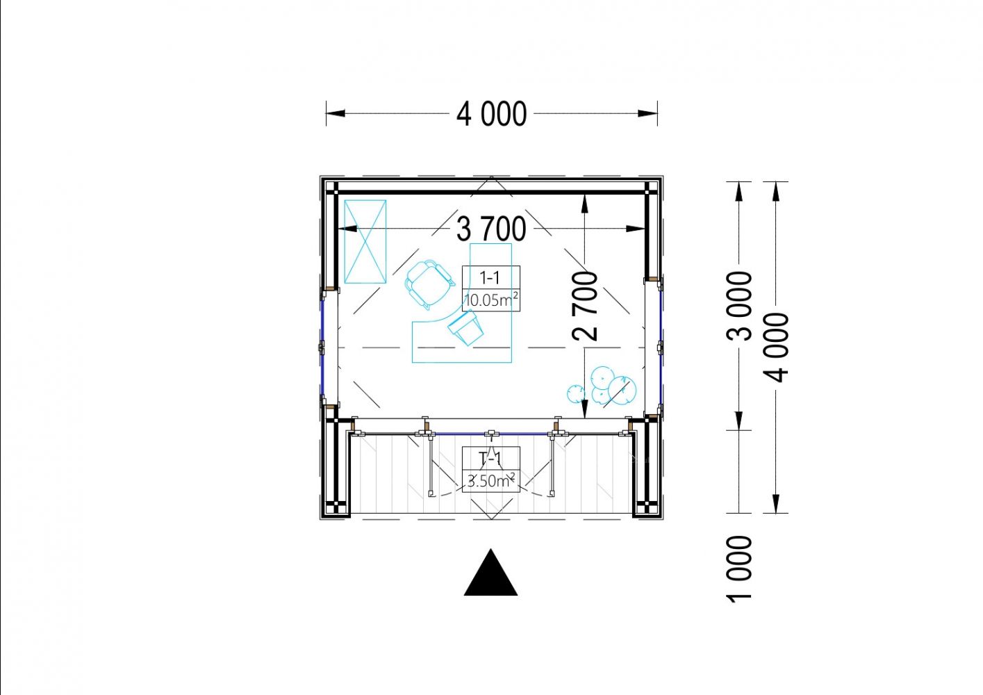
• Entegre kapalı teras – kahve molalarınız sırasında rahatça uzanmanız ve hayal kurmanız için.
• 10 m² iç alan – çalışma masası, sandalye ve raf yerleştirmek için fazlasıyla yeterli alan.
• Binanın ön ve yan taraflarındaki büyük pencereler, aydınlık, gün ışığı alan bir ofis alanının keyfini çıkarmanıza olanak tanır.
Güzel bir bahçe ofisi TINA, daha önce hiç olmadığı gibi uzaktan çalışmanın keyfini çıkarmanızı sağlayacak mükemmel bir uzun vadeli yatırım olabilir. Bu özel kişisel ofis alanı üretkenlik seviyenizi değiştirebilir ve zamanınızı daha verimli kullanmanıza yardımcı olabilir! Şık ve çağdaş bir yapı, arka bahçenize güzel bir şekilde uyum sağlayacak ve hızla yaşam alanınızın ayrılmaz bir parçası haline gelecektir.
Isı yalıtımı
Temel ahşap ev yalıtımı, evinizi ister yazın ister kış aylarında ziyaret etmeye karar verin, daha uzun konaklamalar için optimum termal konfor sağlar. Bu yalıtım versiyonu, duvarlarda, çatıda ve zeminde kullanılan, yılın her ayında sıcaklık ve rahatlık sağlayan 25 mm kalınlığındaki yalıtım malzemesine sahiptir.
| Ahşap İşleme | İsteğe bağlı |
|---|---|
| Çatı | 20 mm dil ve oluk levhaları + 25 mm yalıtım |
| Çatı Alanı | 17 m² |
| Çatı Çıkıntısı (Ön, Yan, Arka) | 20 santimetre |
| Çatı Kaplama Malzemesi | İsteğe bağlı |
| Çürümeye Karşı Garanti | 10 yıl |
| Dış boyutlar (GxD), Metrik | 400x400cm |
| Duvar | 34 mm duvar kütüğü + 25 mm yalıtım + 20 mm kaplama |
| Kapılar | Ahşap 161cm x 192cm (1 adet) |
| Malzeme | Yavaş büyüyen ladin |
| Minimum Taban Gerekli | 380cm x 380cm |
| pencereler | 85 cm x 192 cm (4 adet); 138 cm x 105 cm (1 adet) |
| Saçak yüksekliği | 209,5cm |
| Sırt Yüksekliği | 249,5cm |
| Toplam Oda Sayısı | 1 |
| Yaşam alanı | 10,05 m² |
| Zemin | 20 mm dil ve oluk levhaları + 25 mm yalıtım |
| Zemin alanı | 16 m² |
-
Bu ürün için daha önce yorum yapılmadı.
-
Henüz soru yok
Satın almış olduğunuz ürünü, biz yerinde kurulum ve montaj yapıyoruz. Sizin yapmanız gereken, plan dahilinde zemini ( subasman) hazırlamak. zemini ; beton, bims, bordür, metal olarak yapabilirsiniz.
Örneğin: 50m2 olan bir evi 1 haftada kurulumunu yapıyor teslim ediyoruz. Evin kurulumu + tüm kapı pencereler + taban tahtaları + tavan tahtaları bize aittir. Ahşap kurulumu yapılmış şekilde anahtarınızı teslim ediyoruz.
İşimiz sadece ahşap olduğu için, iç dekorasyon uygulaması yapmıyoruz. Elektrik + su + banyo + mutfak, çatı izolasyon size ait.
( eğer toplu sipariş olursa, çözüm odaklı partner firmalar sayesinde anahtar telimi fiyat da verebiliriz)
Merkezimiz Antalya dır. 1adetli siparişlerde nakliye müşteriye aittir. en az 4 adet ve katları siparişlerde, nakliye firmamıza aittir.
Görüşmeye mi ihtiyacınız var?
Menajerimiz tüm sorularınızı cevaplayacak- Ürün Kodu: AV2271




