• The cabin features a covered terrace, enabling you to spend more time outdoors, enjoying the fresh air despite the weather conditions.
• Lots of large windows surrounding the cabin, ensuring the utmost cosiness and comfort.
• Large double entrance doors featuring traditional style cross double-glazed windows.
• Traditional apex roof with a stylish overhang, providing an additional shaded area for comfortably lounging outdoors.
• A sturdy and reliable tongue & groove construction, ensuring longevity of the building.
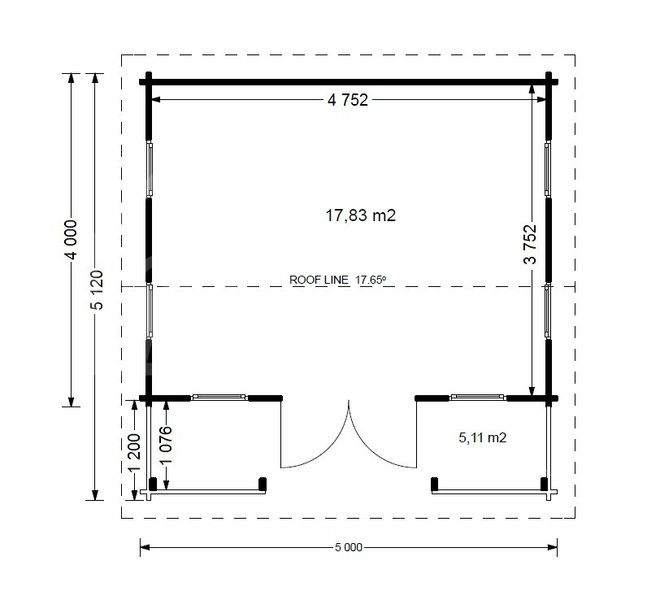
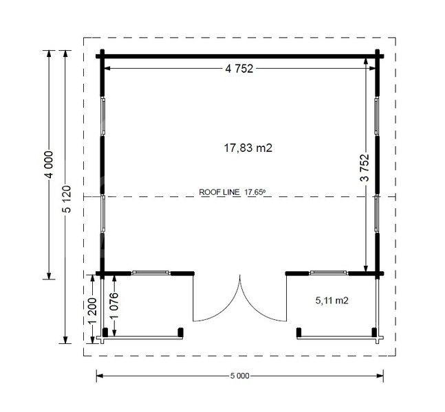
Our lovely wooden cabin ROYAL, featuring vast internal space and a cosy covered terrace, certainly deserves its title. It could become the dreamiest place for your weekend leisure with the family, with its optimal size and numerous functional features. Would you like to be able to dedicate more attention to yourself, spending your free time the way you truly enjoy? Whether you need a peaceful place for relaxation or performing your hobby, ROYAL will quickly become the loveliest visiting spot in your garden area.
Thermal Insulation
Basic wooden house insulation ensures optimal thermal comfort for longer stays, whether you decide to visit your house in summer or winter months. This insulation version features 25 mm thickness insulation material, used for the roof and floors, and in between the double walls, providing warmth and cosiness during any month of the year.
| Anti Rot Warranty | 10 Year |
|---|---|
| Doors | 161cm x 192cm (1 unit) |
| Eaves height | 218 cm |
| External dimensions (WxD), Metric | 500 x 520 cm |
| Floor | 20 mm tongue & groove boards + 25 mm insulation |
| Floor area | 25 m² |
| Material | Slow grown spruce |
| Minimum Base Required | 484cm x 504cm (15'10" x 16'6") |
| Ridge Height | 299 cm |
| Roof | 20 mm tongue & groove boards + 25 mm insulation |
| Roof Covering Material | Optional |
| Roof Overhang (Front, Side, Back) | 30cm (11") |
| Total Number of Rooms | 1 |
| Wall | 44 mm + 25 mm insulation + 44 mm |
| Windows | 85cm x 144m (6 units) |
| Wood Treatment | Optional |
-
There are no reviews for this product.
-
No questions yet
We install and assemble the product you purchased on-site. What you need to do is prepare the foundation (sub-basement) according to the plan. You can make the foundation with concrete, bims, curb, or metal.
For example, we set up and deliver a 50m² house within 1 week. The installation of the house + all doors and windows + floorboards + ceiling boards are our responsibility. We hand over the keys after the wooden structure is assembled.
Since we only work with wood, we do not perform interior decoration. Electricity + water + bathroom + kitchen, and roof insulation are your responsibility.
(if there is a bulk order, we can provide a turnkey price thanks to our solution-oriented partner companies)
Our headquarters is in Antalya. For orders of 1 unit, transportation is the customer's responsibility. For orders of at least 4 units and multiples, transportation is our responsibility.
Need a consultation?
Our manager will answer all your questions- Product code: AV1035




