• Крытая терраса площадью 7 м², идеально подходящая для семейного обеда на свежем воздухе.
• Окна и двери с двойным остеклением, обеспечивающие внутреннюю изоляцию и минимизирующие внешний шум.
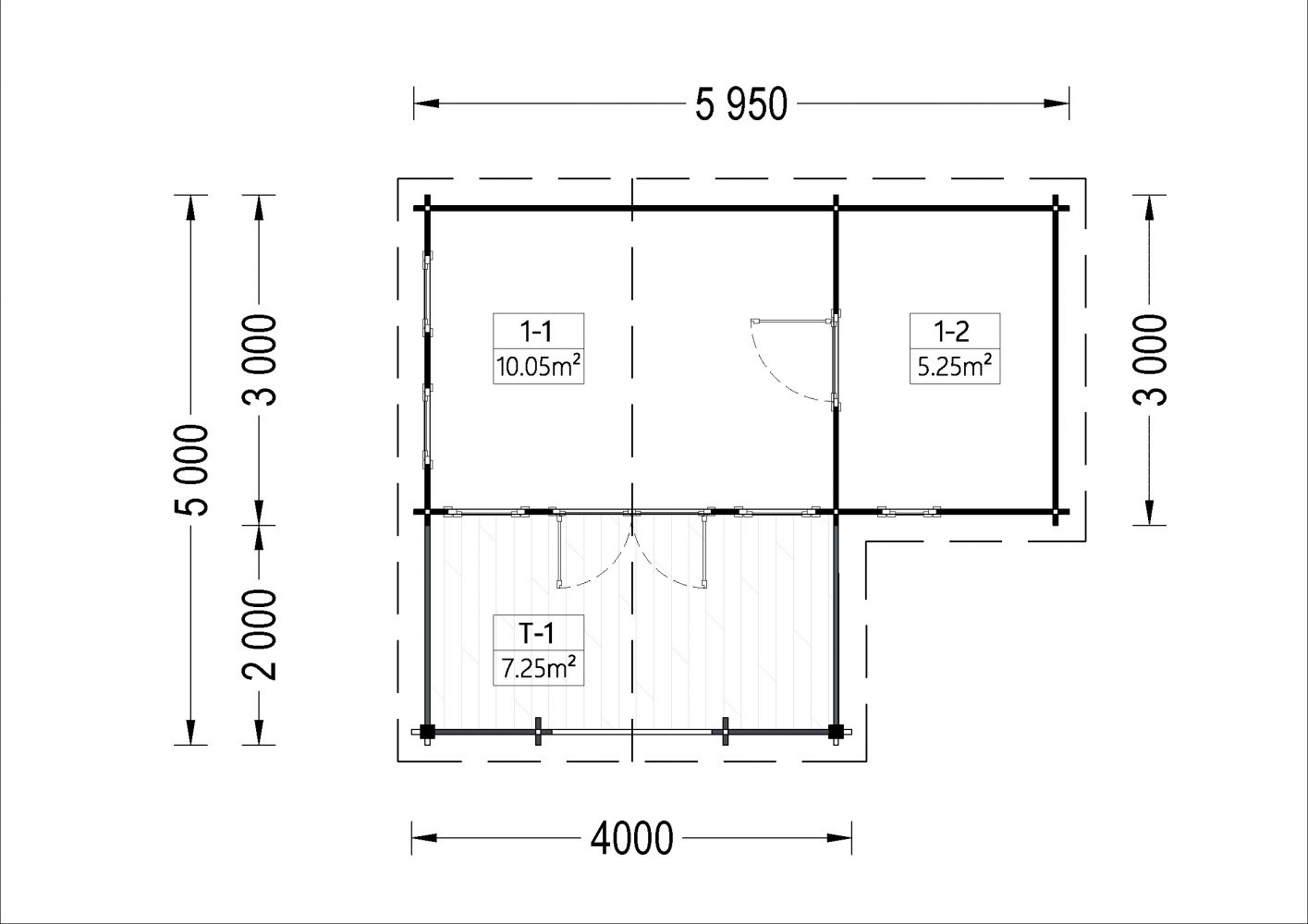
• По умолчанию разделен на две комнаты (внутренняя планировка может быть изменена в соответствии с вашими потребностями и требованиями).
• Стильный свес крыши придает эстетичный классический вид.
• Конструкция с шипами и пазами обеспечивает надежность и прочность конструкции.
Вы мечтали о небольшом месте для отдыха на выходных? Доступный по цене деревянный домик ISLA может стать для вас мечтой! Этот многофункциональный домик, спроектированный и изготовленный с максимальным вниманием к деталям, может служить вам местом для отдыха в саду или милым и уютным дачным домиком.
| Внешние размеры (ШхГ), Метрические | 595 х 500 см |
|---|---|
| Внутренние размеры (ШxГ) | 563 х 468 см |
| Высота гребня | 249,75 см |
| Высота карниза | 166,5 см / 209 см |
| Гарантия против гниения | 10 лет |
| Двери | 1*130 см х 192 см (Вход), 1*85 х 192 см (внутренний) |
| Крыша | Шпунтованная доска толщиной 20 мм. |
| Материал | Медленнорастущая ель |
| Материал кровельного покрытия | Необязательный |
| Обработка древесины | Необязательный |
| Общее количество номеров | 1 |
| Окна | 1*50 см х 50 см;4*70 см х 105 см; |
| Площадь крыши | 43 м² |
| Площадь пола | 18 м² |
| Пол | Шпунтованная доска толщиной 20 мм. |
| Стена | 44 мм |
-
Нет отзывов об этом товаре.
-
Еще не было вопросов
Купленный вами продукт мы устанавливаем и монтируем на месте. Вам необходимо подготовить основание (фундамент) в соответствии с планом. Основание может быть бетонным, бимсовым, бордюрным или металлическим.
Например: дом площадью 50 м² мы устанавливаем за 1 неделю и сдаем готовым. Установка дома + все двери и окна + напольные доски + потолочные доски — это наша ответственность. Мы передаем ключи после монтажа деревянных конструкций.
Поскольку мы занимаемся только деревом, мы не выполняем внутреннюю отделку. Электричество + вода + ванная комната + кухня, а также изоляция крыши остаются за вами.
(если будет массовый заказ, благодаря нашим партнерским фирмам, ориентированным на решения, мы можем предоставить цену под ключ)
Наш главный офис находится в Анталье. При заказе одной единицы транспортировка оплачивается клиентом. При заказе минимум 4 единиц и их кратных транспортировка осуществляется за наш счет.
Нужна консультация?
Наш менеджер ответит на все ваши вопросы- Код товара: AV316




