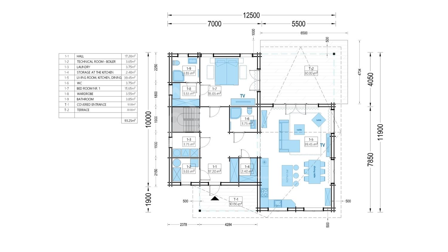
• 5 bedrooms, which will help you and your friends feel comfortable and provide you with common and separate living spaces.
• A storage for keeping your appliances and other items in order.
• An open plan living room and kitchen area, which creates more space for interesting interior design ideas.
• A covered entrance for your safety and convenience.
• A terrace that extends your living space by 30 m².
DARLA is a spacious wooden house that can easily welcome your family and friends for temporary or permanent stays. There's plenty of space for everyone to share their meals and bond in the living room area, and then have a good night's sleep in separate bedrooms. You will want to admire the beautiful design of this classic building in the terrace, which adds even more ways to enjoy your peaceful retreat. If you'd like a residence that can help you relax and feel comfortable hosting dinner parties, DARLA is our recommendation.
| Anti Rot Warranty | 10 Year |
|---|---|
| Doors | 1 * 85 cm x 192 cm ( Entrance ), 1 * 70 x 192 cm11 * 85 x 192 cm (internal) |
| Eaves height | 243 cm |
| External dimensions (WxD), Metric | 1250 x 1190 cm |
| Floor | 19 - 20mm thick tongue & groove boards |
| Floor area | 180 m² |
| Living space | 147,25 m² |
| Material | Slow grown spruce |
| Ridge Height | 614,25 cm |
| Roof | 19 - 20mm thick tongue & groove boards |
| Roof Covering Material | Optional |
| Roof Slope Ratio | 14,3/32,6° |
| Total Number of Rooms | 15 |
| Wall | 44+44 mm |
| Windows | 4* 70 cm x 105 cm;7* 138 cm x 105 cm;8* 85 cm x 192 cm (vitrine);2* 161 cm x 192 cm (balcony door); |
| Wood Treatment | Optional |
-
There are no reviews for this product.
-
No questions yet
We install and assemble the product you purchased on-site. What you need to do is prepare the foundation (sub-basement) according to the plan. You can make the foundation with concrete, bims, curb, or metal.
For example, we set up and deliver a 50m² house within 1 week. The installation of the house + all doors and windows + floorboards + ceiling boards are our responsibility. We hand over the keys after the wooden structure is assembled.
Since we only work with wood, we do not perform interior decoration. Electricity + water + bathroom + kitchen, and roof insulation are your responsibility.
(if there is a bulk order, we can provide a turnkey price thanks to our solution-oriented partner companies)
Our headquarters is in Antalya. For orders of 1 unit, transportation is the customer's responsibility. For orders of at least 4 units and multiples, transportation is our responsibility.
Need a consultation?
Our manager will answer all your questions- Product code: AV1859





