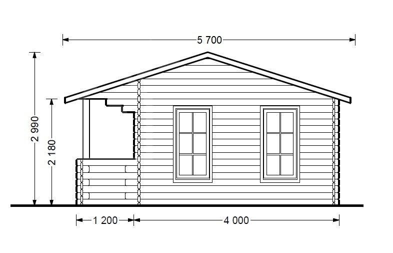
• В домике имеется крытая терраса, позволяющая проводить больше времени на свежем воздухе, наслаждаясь свежим воздухом, несмотря на погодные условия.
• Множество больших окон вокруг кабины, обеспечивающих максимальный уют и комфорт.
• Большие двойные входные двери с традиционными перекрестными окнами с двойным остеклением.
• Традиционная крыша со стильным свесом, обеспечивающая дополнительную затененную зону для комфортного отдыха на свежем воздухе.
• Прочная и надежная конструкция «гребень-паз», обеспечивающая долговечность здания.
Наша прекрасная деревянная каюта ROYAL с огромным внутренним пространством и уютной крытой террасой, безусловно, заслуживает своего названия. Благодаря оптимальному размеру и многочисленным функциональным возможностям он может стать самым мечтательным местом для семейного отдыха на выходных. Хотели бы вы иметь возможность уделять больше внимания себе, проводя свободное время так, как вам действительно нравится? Если вам нужно спокойное место для отдыха или занятий хобби, ROYAL быстро станет самым прекрасным местом для посещения в вашем саду.
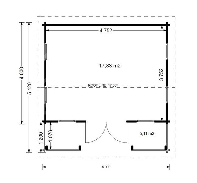
| Внешние размеры (ШхГ), Метрические | 500 х 400 см + 500 х 120 см |
|---|---|
| Внутренние размеры (ШxГ) | 471 х 371 см + 471 х 101 см |
| Высота гребня | 263 см |
| Высота карниза | 209 см |
| Гарантия против гниения | 10 лет |
| Двери | 161 см х 192 см (1 шт.) |
| Крыша | Шпунтованная доска толщиной 19–20 мм. |
| Материал | Медленнорастущая ель |
| Материал кровельного покрытия | Необязательный |
| Минимальная требуемая база | 484 см x 504 см (15#039;10" x 16#039;6") |
| Обработка древесины | Необязательный |
| Общее количество номеров | 1 |
| Окна | 85см х 144м (6 единиц) |
| Площадь пола | 25 м² |
| Пол | Шпунтованная доска толщиной 19–20 мм. |
| Свес крыши (передний, боковой, задний) | 30 см (11 дюймов) |
| Стена | 34 мм |
-
Нет отзывов об этом товаре.
-
Еще не было вопросов
Купленный вами продукт мы устанавливаем и монтируем на месте. Вам необходимо подготовить основание (фундамент) в соответствии с планом. Основание может быть бетонным, бимсовым, бордюрным или металлическим.
Например: дом площадью 50 м² мы устанавливаем за 1 неделю и сдаем готовым. Установка дома + все двери и окна + напольные доски + потолочные доски — это наша ответственность. Мы передаем ключи после монтажа деревянных конструкций.
Поскольку мы занимаемся только деревом, мы не выполняем внутреннюю отделку. Электричество + вода + ванная комната + кухня, а также изоляция крыши остаются за вами.
(если будет массовый заказ, благодаря нашим партнерским фирмам, ориентированным на решения, мы можем предоставить цену под ключ)
Наш главный офис находится в Анталье. При заказе одной единицы транспортировка оплачивается клиентом. При заказе минимум 4 единиц и их кратных транспортировка осуществляется за наш счет.
Нужна консультация?
Наш менеджер ответит на все ваши вопросы- Код товара: AV1979




