• Spacious and sunlit space, perfect for creating a garden relaxation oasis.
• Roomy internal area of the cabin enables you to set up a perfect space for numerous activities.
• Stylish roof overhang, providing a comfortable shaded area during the sunny days or an excellent shelter from the rain.
• Double glazed windows and doors, ensuring additional thermal and noise insulation.
Want to have a dedicated space to enjoy some personal time, perform your hobby, relax and unwind? Our wooden cabin DREUX could be an optimal solution for all these purposes and more! Having a personal space for relaxation could dramatically improve your life quality, so if you have been dreaming about such a solution for a long time, DREUX could be the winning choice!
| Anti Rot Warranty | 10 Year |
|---|---|
| Doors | 1* 85 cm x 192 cm |
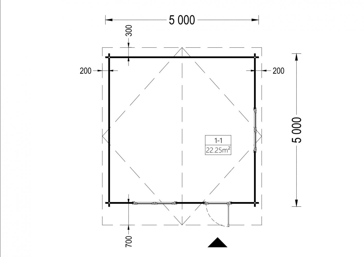
| Eaves height | 202,5 cm |
| External dimensions (WxD), Metric | 500 x 500 cm |
| Floor | 19 - 20mm thick tongue & groove boards |
| Floor area | 25 m² |
| Internal dimensions (WxD) | 471 x 471 cm |
| Material | Slow grown spruce |
| Ridge Height | 256,5 cm |
| Roof | 19 - 20mm thick tongue & groove boards |
| Roof Area | 35 m² |
| Roof Covering Material | Optional |
| Roof Overhang (Front, Side, Back) | 70 cm |
| Roof Slope Ratio | 13° |
| Total Number of Rooms | 1 |
| Wall | 44 mm |
| Windows | 2* 138 cm x 105 cm |
| Wood Treatment | Optional |
-
There are no reviews for this product.
-
No questions yet
We install and assemble the product you purchased on-site. What you need to do is prepare the foundation (sub-basement) according to the plan. You can make the foundation with concrete, bims, curb, or metal.
For example, we set up and deliver a 50m² house within 1 week. The installation of the house + all doors and windows + floorboards + ceiling boards are our responsibility. We hand over the keys after the wooden structure is assembled.
Since we only work with wood, we do not perform interior decoration. Electricity + water + bathroom + kitchen, and roof insulation are your responsibility.
(if there is a bulk order, we can provide a turnkey price thanks to our solution-oriented partner companies)
Our headquarters is in Antalya. For orders of 1 unit, transportation is the customer's responsibility. For orders of at least 4 units and multiples, transportation is our responsibility.
Need a consultation?
Our manager will answer all your questions- Product code: AV030




