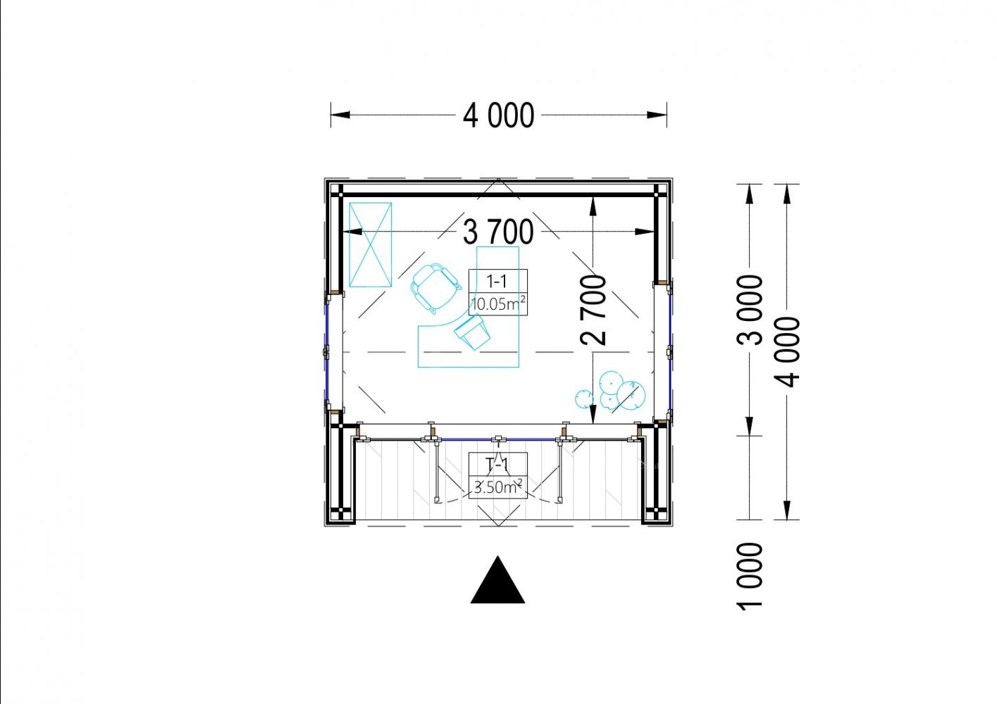
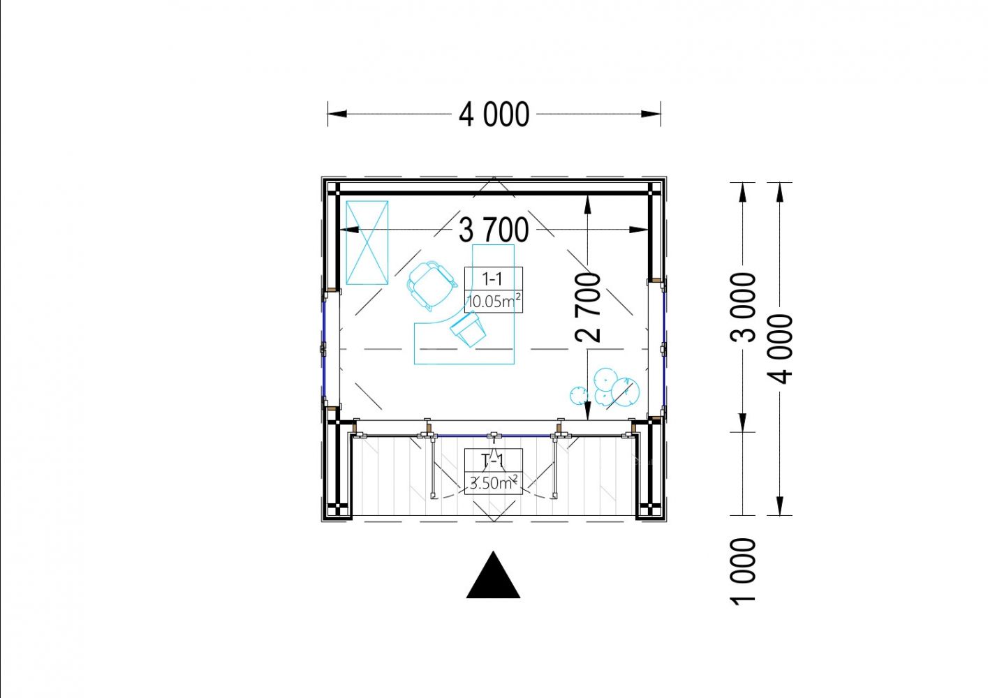
• Встроенная крытая терраса – для комфортного отдыха и мечтаний во время кофе-брейков.
• Внутреннее пространство 10 м² – более чем достаточно места для размещения рабочего стола, стула и полки.
• Большие окна спереди и по бокам здания, позволяющие наслаждаться ярким, наполненным солнечным светом офисным пространством.
Прекрасный садовый офис TINA может стать превосходной долгосрочной инвестицией, которая позволит вам наслаждаться удаленной работой, как никогда раньше. Это выделенное личное офисное пространство может изменить уровень вашей производительности и помочь вам более эффективно использовать свое время! Изящная современная конструкция прекрасно впишется в ваш двор и быстро станет неотъемлемой частью вашего жилого пространства.
| Внешние размеры (ШхГ), Метрические | 400 х 400 см |
|---|---|
| Высота гребня | 249,5 см |
| Высота карниза | 209,5 см |
| Гарантия против гниения | 10 лет |
| Двери | Деревянный 161см х 192см (1 шт.) |
| Жизненное пространство | 10,05 м² |
| Крыша | Доски с шпунтом и пазом толщиной 18-20 мм |
| Материал | Медленнорастущая ель |
| Материал кровельного покрытия | Необязательный |
| Минимальная требуемая база | 380см х 380см |
| Обработка древесины | Необязательный |
| Общее количество номеров | 1 |
| Окна | 85 см х 192 см (4 шт.); 138 см х 105 см (1 шт.) |
| Площадь крыши | 17 м² |
| Площадь пола | 16 м² |
| Пол | Доски с шпунтом и пазом толщиной 18-20 мм |
| Свес крыши (передний, боковой, задний) | 20 см |
| Стена | Бревно толщиной 34 мм + деревянная обшивка толщиной 18-20 мм |
-
Нет отзывов об этом товаре.
-
Еще не было вопросов
Купленный вами продукт мы устанавливаем и монтируем на месте. Вам необходимо подготовить основание (фундамент) в соответствии с планом. Основание может быть бетонным, бимсовым, бордюрным или металлическим.
Например: дом площадью 50 м² мы устанавливаем за 1 неделю и сдаем готовым. Установка дома + все двери и окна + напольные доски + потолочные доски — это наша ответственность. Мы передаем ключи после монтажа деревянных конструкций.
Поскольку мы занимаемся только деревом, мы не выполняем внутреннюю отделку. Электричество + вода + ванная комната + кухня, а также изоляция крыши остаются за вами.
(если будет массовый заказ, благодаря нашим партнерским фирмам, ориентированным на решения, мы можем предоставить цену под ключ)
Наш главный офис находится в Анталье. При заказе одной единицы транспортировка оплачивается клиентом. При заказе минимум 4 единиц и их кратных транспортировка осуществляется за наш счет.
Нужна консультация?
Наш менеджер ответит на все ваши вопросы- Код товара: AV1957




