Основные характеристики модели:
• Функциональный пристроенный навес для безопасного хранения газонокосилки, велосипедов, инструментов и оборудования.
• Ниша рядом со входом в сарай обеспечивает дополнительное место для хранения вещей и придает уникальный архитектурный вид общему дизайну кабины.
• Красивый свес крыши, позволяющий вам наслаждаться столь необходимой затененной зоной в теплые летние дни на открытом воздухе.
• Окна и двери с двойным остеклением, гарантирующие максимальную тепловую эффективность и общий комфорт.
CLARA – одна из жемчужин классического стиля в нашей коллекции традиционных деревянных построек. Эта каюта, отличающаяся небольшими стильными архитектурными деталями и множеством других преимуществ, обеспечит великолепный эстетический вид и обеспечит вам максимальную функциональность и комфорт. Войдите в пространство, которое полностью принадлежит вам, и сделайте его местом, где можно приятно провести время! Если вам нужна простая комната для отдыха в перерывах между работами в саду, удаленное рабочее место или место, где можно собраться с друзьями для ужина с барбекю, это определенно может быть правильным решением!
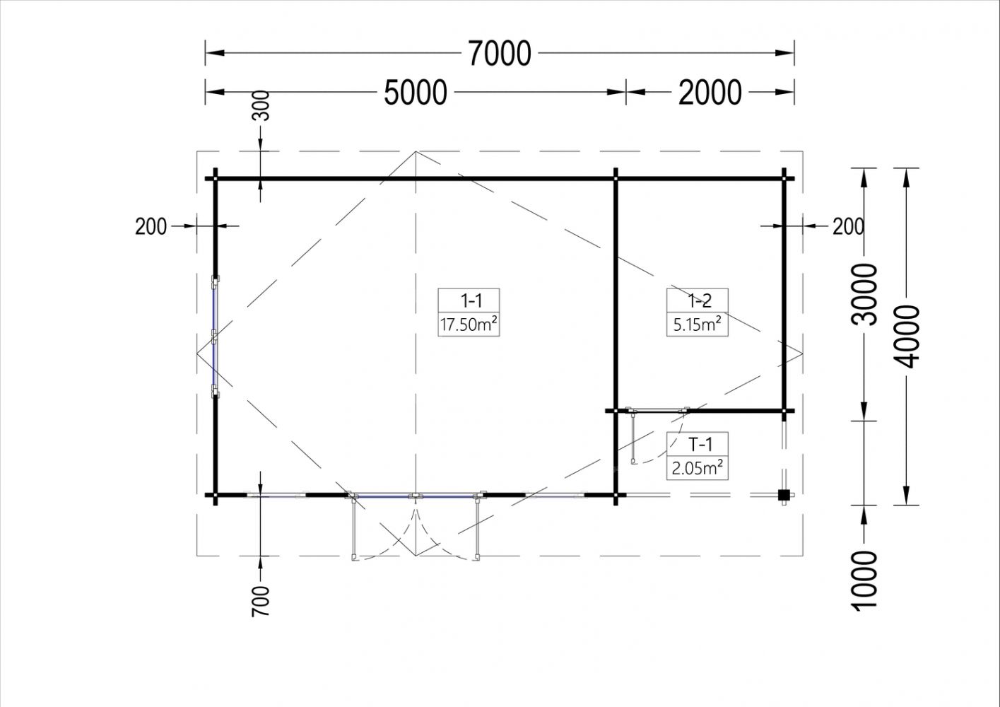
| Внешние размеры (ШхГ), Метрические | 700 x 400 cm |
|---|---|
| Высота гребня | 270 cm |
| Высота карниза | 169 cm |
| Гарантия против гниения | 10 Year |
| Двери | 161 cm x 192 cm (1 unit), 69 cm x 172 cm (1 unit) |
| Жизненное пространство | 22,65 m² |
| Крыша | 19 - 20mm thick tongue & groove boards |
| Материал | Slow grown spruce |
| Материал кровельного покрытия | Optional |
| Обработка древесины | Optional |
| Общее количество номеров | 2 |
| Окна | 138 cm x 105 cm (1 unit); 70 cm x 105 cm (2 units) |
| Площадь пола | 28 m² |
| Пол | 19 - 20mm thick tongue & groove boards |
| Свес крыши (передний, боковой, задний) | 70cm |
| Стена | 80 mm |
-
Нет отзывов об этом товаре.
-
Еще не было вопросов
Купленный вами продукт мы устанавливаем и монтируем на месте. Вам необходимо подготовить основание (фундамент) в соответствии с планом. Основание может быть бетонным, бимсовым, бордюрным или металлическим.
Например: дом площадью 50 м² мы устанавливаем за 1 неделю и сдаем готовым. Установка дома + все двери и окна + напольные доски + потолочные доски — это наша ответственность. Мы передаем ключи после монтажа деревянных конструкций.
Поскольку мы занимаемся только деревом, мы не выполняем внутреннюю отделку. Электричество + вода + ванная комната + кухня, а также изоляция крыши остаются за вами.
(если будет массовый заказ, благодаря нашим партнерским фирмам, ориентированным на решения, мы можем предоставить цену под ключ)
Наш главный офис находится в Анталье. При заказе одной единицы транспортировка оплачивается клиентом. При заказе минимум 4 единиц и их кратных транспортировка осуществляется за наш счет.
Нужна консультация?
Наш менеджер ответит на все ваши вопросы- Код товара: AV337-2




